Ontario Construction News staff writer
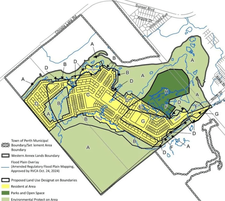
A resolution has been achieved through a mediation process led by the Ontario Land Tribunal (OLT) regarding a proposed subdivision from CAIVAN (Perth GC) Limited, moving closer to settling a significant planning conflict.
This settlement comes after several mediation sessions that took place throughout the year under Case Number OLT-23000534. These meetings involved representatives from the Town of Perth, the County of Lanark, CAIVAN, legal advisors, expert witnesses, and a mediator appointed by the Tribunal.
The town reported that mediation sessions were conducted on Feb. 14, March 16, April 30, May 30, Aug. 19, Sept. 23 and Oct. 23. The process enabled all parties to share information, clarify technical and planning concerns, and navigate areas of both agreement and disagreement with guidance from the OLT mediator.
Now that mediation is finished, the matter progresses to the formal approval stage for settlement within the Tribunal process. Legal teams are currently preparing the Minutes of Settlement which will be reviewed and signed by representatives from the Town of Perth, Lanark County, and CAIVAN.
Once approved, these Minutes will be made public, followed by a meeting where details about the settlement will be shared. This public meeting could happen as soon as January 2026; however, exact dates and locations are still pending confirmation.
Those involved in the OLT process will also have a chance to update or withdraw their previous submissions according to timelines set by the Tribunal. An OLT hearing will then take place to evaluate both the Minutes of Settlement and participant statements before a final decision is made by the Tribunal. The date for this hearing is yet to be established.
The Town of Perth recognized that local residents and stakeholders have been closely monitoring this proposed subdivision along with ongoing OLT proceedings. While updates have been limited due to active processes with the Tribunal so far, officials assure they are committed to maintaining transparency.
Once finalized and approved, complete details will be available on the Town’s engagement website and presented during the public meeting.
This settlement represents an important move towards regulatory clarity regarding CAIVAN’s project within Ontario’s construction and development sector while awaiting final approval from the Ontario Land Tribunal.
Source link
Source link









